Mehrfamilienhaus Neuenhagen
Ein klar strukturierter Neubau für mehrere Wohneinheiten. Die Architektur folgt einer ruhigen, funktionalen Ordnung mit präziser Lichtführung und zurückhaltender Materialität. Das Mehrfamilienhaus schafft hochwertige, alltagstaugliche Wohnräume und fügt sich selbstverständlich in das gewachsene Umfeld ein.

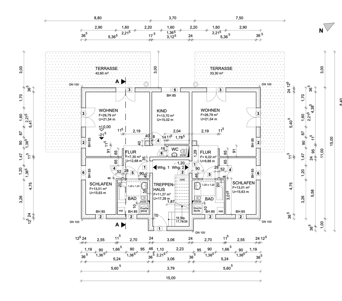
Entwurf & Neubaukonzept
Der Entwurf des Mehrfamilienhauses basiert auf einer klaren, effizienten Grundrissorganisation. Die einzelnen Wohneinheiten sind logisch erschlossen und profitieren von gut proportionierten Räumen sowie einer gleichmäßigen Tageslichtversorgung. Gemeinschaftliche Bereiche wie das Treppenhaus sind funktional und zurückhaltend gestaltet, während die Wohnungen eine ruhige, langlebige Materialität aufweisen.



Wohnküche
Funktion & Alltagstauglichkeit
Wohnküche

Treppenhaus
Erschließung & Ordnung
Treppenhaus

Bad
Klarheit & Robustheit
Bad
EinMehrfamilienhaus,dasdurchKlarheit,OrdnungundAlltagstauglichkeitüberzeugt.
Struktur
Eine klare Organisation sorgt für effiziente Erschließung und gut nutzbare Grundrisse.
Licht
Großzügige Öffnungen gewährleisten helle Wohnungen und angenehme Raumwirkungen.
Material
Robuste, zurückhaltende Materialien unterstützen eine langfristige Nutzung.
Wohnen
Die Wohnungen bieten Qualität im Alltag und Flexibilität für unterschiedliche Lebensmodelle.
Einbindung
Der Baukörper fügt sich ruhig und selbstverständlich in das Umfeld ein.
DieWohnungensindklarstrukturiertundimAlltagsehrangenehmzunutzen.
Planen Sie ein Mehrfamilienhaus?
Wir entwickeln wirtschaftliche und architektonisch klare Konzepte für den Wohnungsbau – vom Entwurf bis zur Umsetzung.