Einfamilienhaus Mahlsdorf
Ein klar strukturierter Neubau, der zeitgemäßes Wohnen mit ruhiger architektonischer Haltung verbindet. Präzise Proportionen, ausgewogene Lichtführung und eine reduzierte Materialität prägen das Erscheinungsbild. Die Architektur schafft einen funktionalen und zugleich atmosphärischen Rahmen für das tägliche Leben.

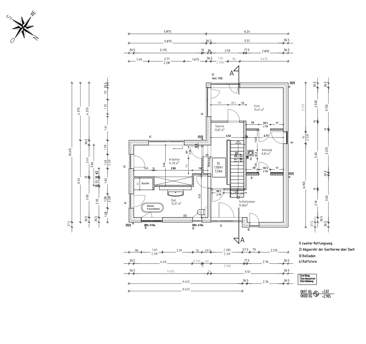
Entwurf & Neubaukonzept
Der Entwurf folgt einer klaren, rationalen Grundrisslogik. Öffentlich genutzte Bereiche sind offen miteinander verbunden, während private Räume bewusst ruhiger organisiert sind. Großzügige Öffnungen sorgen für eine gleichmäßige Tageslichtversorgung und schaffen fließende Übergänge zwischen Innen- und Außenraum. Materialität und Details sind bewusst reduziert und unterstreichen den zeitlosen Charakter des Hauses.



Treppe
Leichtigkeit & Verbindung
Treppe

Wohnraum
Atmosphäre & Fokus
Wohnraum

Küche
Funktion & Klarheit
Küche

Bad
Ruhe & Präzision
Bad
EinHaus,dasdurchKlarheitüberzeugt–reduziertimAusdruck,präziseinderFunktion.
Raum
Offene Bereiche und klar definierte Rückzugsräume schaffen eine ausgewogene Wohnstruktur.
Licht
Großzügige Öffnungen sorgen für helle Räume und eine selbstverständliche Verbindung nach außen.
Material
Reduzierte Materialien und saubere Details unterstreichen den zeitlosen Charakter.
Alltag
Klare Abläufe und kurze Wege unterstützen eine intuitive Nutzung.
Architektur
Der Baukörper zeigt Zurückhaltung und Präsenz zugleich – ruhig, präzise und dauerhaft.
EinHaus,dasnichtauffällt,sondernfunktioniert–undgenaudarinseineQualitätfindet.
Planen Sie einen Neubau?
Wir begleiten Sie von der ersten Idee über den Entwurf bis zur Umsetzung – mit architektonischer Klarheit und technischem Anspruch.