Wohnhaus Dahlem
Ein klares Wohnhaus mit offener Raumfolge, präziser Lichtführung und ruhiger Materialität. Das Projekt verbindet urbanes Wohnen mit privater Rückzugsmöglichkeit auf 780 m² Grundstück.

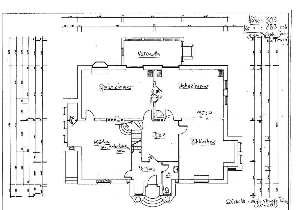
Entwurf & Konzept
Das Wohnhaus Daahlem zeichnet sich durch eine klare Grundrissorganisation und eine präzise Lichtführung aus. Offene Raumfolgen schaffen Großzügigkeit, während Details wie Materialität und Fügung die Architektur veredeln. Der zweigeschossige Baukörper orientiert sich zum Garten und nutzt die Südausrichtung optimal für passive Solargewinne. Eine durchdachte Raumschichtung von öffentlich zu privat strukturiert das Wohnkonzept: Im Erdgeschoss bilden Eingang, Küche, Ess- und Wohnbereich eine fließende Einheit, während das Obergeschoss den Schlaf- und Arbeitsbereichen vorbehalten ist.



Kamin
Atmosphäre & Materialität
Kamin

Treppe
Leichtigkeit & Konstruktion
Treppe

Außenansicht
Architektur & Präsenz
Außenansicht
EinWohnhaus,dassichzurücknimmtunddurchHaltungüberzeugt–Architekturalsklarer,verlässlicherRahmenfürdenAlltag.
Raum
Offen organisiert und klar gegliedert entstehen zusammenhängende Räume mit Weite, Orientierung und ruhigem Übergang.
Licht
Gezielt gesetzte Öffnungen prägen die Raumwirkung und verbinden Innen- und Außenraum selbstverständlich.
Material
Zurückhaltende Oberflächen und präzise Verarbeitung lassen Materialität ruhig und dauerhaft wirken.
Alltag
Logische Wege und flexibel nutzbare Räume machen Architektur zum verlässlichen Begleiter des täglichen Lebens.
Einordnung
Der Baukörper fügt sich ruhig in sein Umfeld ein und zeigt Präsenz ohne sich aufzudrängen.
Räume,dienichtdominieren,sondernselbstverständlichfunktionieren.
Möchten Sie Ihr eigenes Projekt starten?
Unsere Erfahrung aus über 20 Jahren Einfamilienhausarchitektur steht Ihnen zur Verfügung. Von der ersten Idee über die Entwurfsplanung bis zur Baubegleitung – wir realisieren Ihr individuelles Wohnkonzept.